Créez un compte pour gérer vos favoris
Your favorites
Uccle

Uccle - Superb building land

  • 2800 m2
1 990 000 €
Contact us
Reference: 86619890
Share this

Characteristics

  • Type
    Land
  • Area
    2800 m2
  • Reference
    86619890
  • Orientation
    South-west

Guided tour

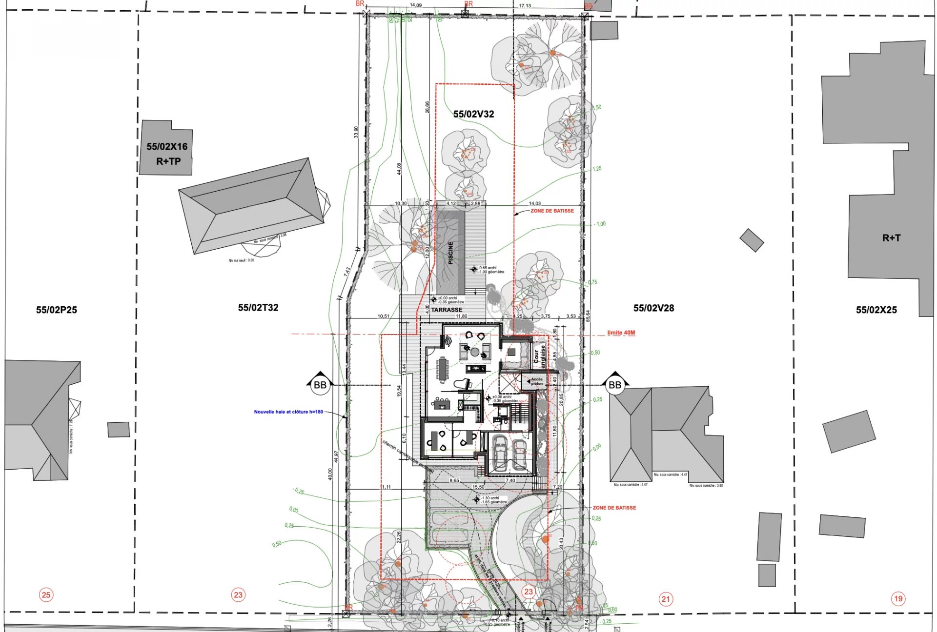
Uccle - Prince d'Orange - Very beautiful building plot of +/- 28 ares well oriented southwest.
Coming from an original plot of approximately 55 ares, and today divided in two (the separation still to be finalized), this land, of approximately 28 ares, was the subject of a construction permit for a contemporary villa signed Marc Corbiau from around 835sqm.
Rare opportunity to purchase land with permit.
File on request.

Uccle - Superb building land
Uccle - Superb building land
Uccle - Superb building land
Uccle - Superb building land
Uccle - Superb building land
Uccle - Superb building land

This property is presented by

Barnes Yachts

Barnes Bruxelles

Contact us

Barnes Brussels

Avenue Louise 404a 1050 Brussels - Belgium

Bruxelles, 1000 Belgium

Contact us for more information

BARNES Belgium requires the information collected to process your request. You can consult our Data Protection Policy by clicking on this link. You have the right to access, modify and delete your data at any time.

Contact us

Would you like to obtain information about Barnes Brussels, Walloon Brabant or Flemish Brabant, our properties, or our agencies?